Graz-Liebenau HÄUSER – LEIFHELMGASSE
Die KOHLBACHER-Häuser wurden im südlichen Teil der Stadt Graz auf diesem sonnigen Grundstück in der Leifhelmgasse errichtet. Schulen, Kindergärten, Nahversorger, sowie das Einkaufszentrum Murpark sind von hier aus schnell zu erreichen. Die derzeit noch freien Häuser können ab sofort besichtigt werden. Wir bitten um Terminvereinbarung unter 03854/6111-6.
Allgemeine Daten
Infrastruktur
Liebenau liegt im südlichen Teil der Stadt Graz, im Norden an Jakomini, im Osten ans Viertel St. Peter und an der Westseite an den Bezirk Puntigam grenzend. Trotz des geschäftigen Treibens ist der Stadtteil dank seiner vielen Grünflächen ruhig und bietet ebenso eine bunte Mischung an Freizeitangeboten, wie z.B. die UPC-Arena oder das Einkaufszentrum Murpark.
Grundstück
Die Grundstücke (ca. 173 bzw. 215 m²) werden von uns voll aufgeschlossen und beinhalten: Wasserversorgung, Strom, Heizung, Abwasserbeseitigung und die Verkehrserschließung.
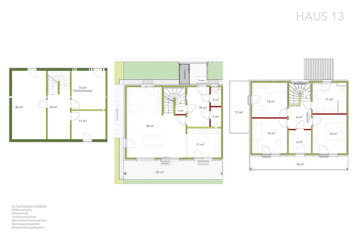
Wohnfläche
Die Häuser verfügen über ca. 128 bzw. 135 m² Wohnfläche im Erd- und Obergeschoss und sind zusätzlich voll unterkellert. Durch sorgfältige Planung wurde eine optimale Raumaufteilung erzielt.
Heizung
Die Wärmeversorgung für die bequeme Fußbodenheizung erfolgt über Fernwärme.